Как сделать на даче своими руками туалет-домик
Домик для дачи отличается от скворечника непростой формой. Для сборки каркаса туалета и его обшивки потребуются строительские навыки:
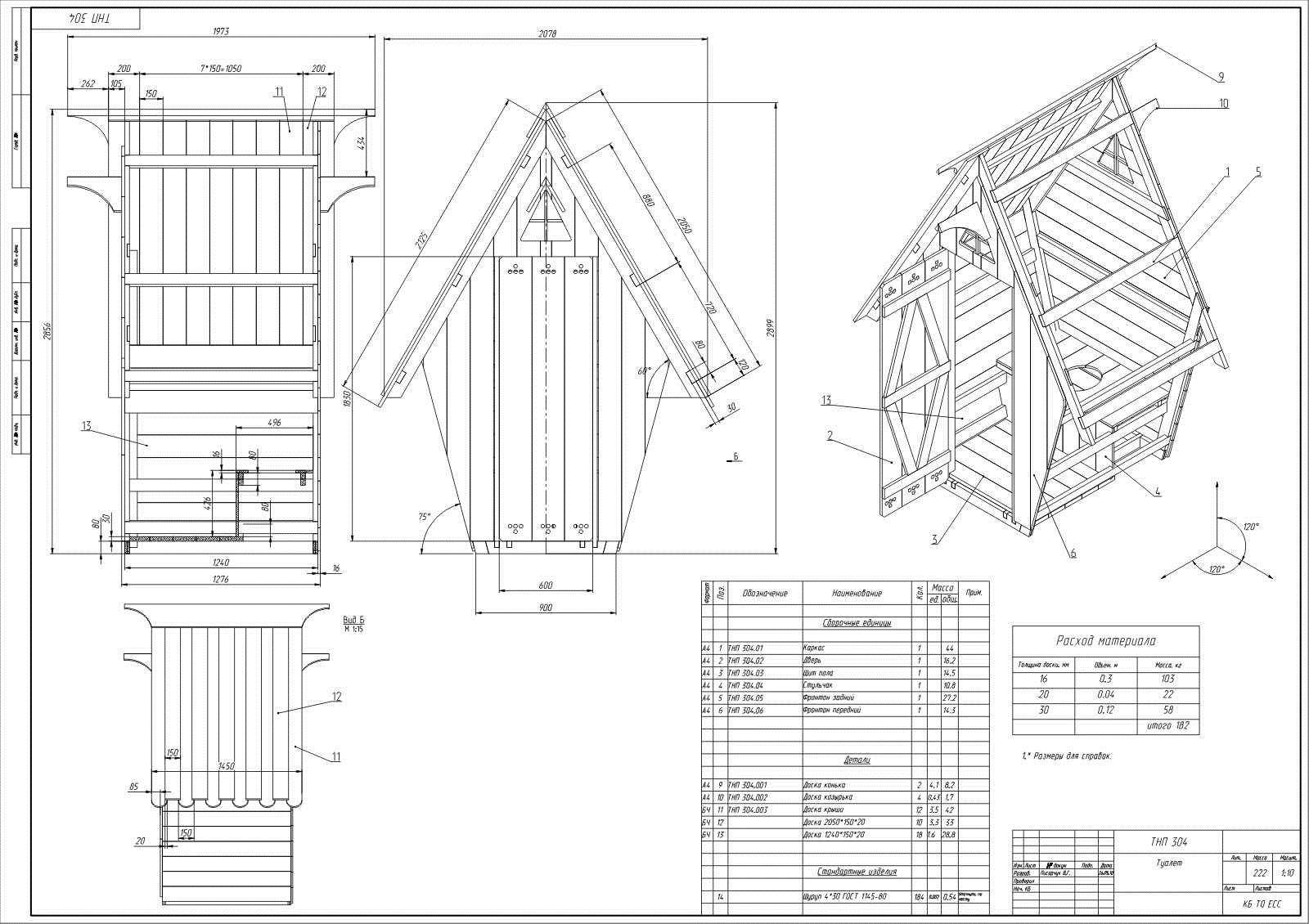
- Строительство начинается с вырывания котлована. Последовательность действий не отличается от предыдущего варианта. Вокруг ямы размещают бетонные блоки, для установки основы каркаса. Ее собирают из 4 досок, которые соединены между собой гвоздями или металлическими уголками.
- Стены туалета домика начинают делать, собирая каркас боковых половин. Для этого требуется брус, спиленный с обоих концов под углом. Расстояние между укрепляющими балками должно быть одинаковым. К основе каркаса их крепят гвоздями.
- Затем фиксируют конструкцию горизонтальной перекладиной.
- Далее собирают переднюю часть конструкции, где заранее обозначается место установки дверей.
- Последней собирают заднюю стенку туалета и делают каркас для стульчака. Пол и стульчак обшивают толстыми досками. Доску для стульчака предварительно хорошо обрабатывают рубанком.
- Завершающим этапом становится обшивка каркаса, кровля крыши и установка двери.
Туалет для дачи сделанный своими руками готов. Остается провести освещение и установить стульчак.
Советы от специалистов
- Для придания дачному туалету устойчивости, необходимо надежно зафиксировать низ конструкции.
- Уличную уборную следует располагать выше уровня грунта примерно на 20 сантиметров.
- Обшивку не следует делать над ямой, до этого нужно смонтировать пол и обустроить сиденье.
- Затем в стороне сооружают каркас и устанавливают на подготовленное основание, для чего потребуется помощь двух человек.
- В процессе работы нужно контролировать вертикаль и горизонталь с помощью уровня.
- Дверной блок делают открывающимся наружу.
- Нужно помнить о световом окне.
- Если стены не обшивают виниловой вагонкой, их необходимо покрасить краской.
- Деревянное полотно обрабатывают антисептиком.
Расчет дачной выгребной ямы
Подобрав подходящее место для выгреба, следует определить его геометрические параметры. Пойдем по порядку:
Объем
Согласно требований санитарных норм, минимальный объем выгребной ямы должен составлять 2 куб. м. Если она строится только для уличного туалета, этой величины будет вполне достаточно.
Иное дело, если в яму предполагается собирать стоки не только из туалета, но и из кухни с ванной комнатой, причем туалет устроен в доме и отходы смываются водой.
В этом случае нужно произвести простенький расчет: считается, что суточный объем бытовых стоков составляет 0,2 куб. м на одного человека. Данная величина приведена в санитарных нормах, то есть при проживании в доме троих взрослых человек и одного ребенка за сутки в яму будет поступать 3х0,2 + 0,1 = 0,7 куб. м стоков (детская норма составляет половину от взрослой).
Далее нужно рассмотреть два варианта:
- Яма будет иметь дренирующее днище с фильтрующей засыпкой из щебня, то есть жидкая фракция частично будет уходить в грунт. В этом случае ее объем следует принимать равным тройному суточному объему стоков, то есть в нашем случае он составит V = 3х0,7 = 2,1 куб. м. При таком объеме жидкость успеет впитаться в землю и яма не будет переполняться. Отметим, что строить яму по такому принципу — не самое удачное решение, поскольку просачивающаяся в грунт грязная вода будет отравлять его. Правильнее будет построить септик, в котором вода перед сбросом в грунт проходит очистку методом отстаивания.
- Яма будет герметичной. В этом случае объем сооружения следует принимать с тем расчетом, чтобы откачку приходилось выполнять не чаще 1-го раза в месяц.
За 30 дней взятой для примера семьей будет произведено 0,7х30 = 21 куб. м стоков, следовательно, такой полезный объем (ниже врезки канализационной трубы) и должна иметь яма.
Глубина
Глубину выгреба следует принимать с учетом длины шланга ассенизаторской машины, которая обычно составляет 3 м. Таким образом, яму желательно делать не глубже 2,5 м, чтобы гарантированно откачивался весь осадок со дна.
Ширина
Ширину небольшой выгребной ямы, предназначенной исключительно для уличного туалета, принимают равной 1 – 1,5 м.
При строительстве более крупных сооружений нужно учитывать то, какие материалы будут использоваться для устройства перекрытия, ведь яму перекрывают именно по ширине.
Если в этом качестве будут применяться толстые доски, ширину желательно делать не более 2-х м.
При наличии железобетонной плиты (ее можно отлить самостоятельно прямо на месте) ширину можно принять равной 3 м или более (в зависимости от марки плиты).
Полезные советы
Чтобы построить туалет на даче своими руками правильно, а пользоваться им было удобно и просто, нужно обратить внимание на советы опытных строителей:
- Выгребная яма заполняется быстрее, если в нее постоянно попадает туалетная бумага и другие средства гигиены. Необходимо разместить в туалете специальную емкость под мусор, который при наполнении можно сжечь или утилизировать другим способом.
- Яму под нечистоты в туалете можно сделать самому, но лучше приобрести специальный септик. Это облегчит очищение и продлит срок эксплуатации. В таких емкостях предусмотрено 2 горлышка. Первое для поступления отходов, второе для их выкачки.
- Чтобы неприятный запах не распространялся, нужно установить в стульчак сиденье от унитаза с крышкой.
- Если туалет для дачи торфяной, то можно сделать обычный стульчак подъемным. Разделить его на три части и смонтировать из каждой дверцу. В первом отсеке разместить ведро для мусора. Посередине будет находиться сам туалет, а с другого края ведро с торфом. Когда придет время наполнить или опорожнить одно из ведер, нужно просто поднять крышку.
- Необходимо продумать обустройство внутри кабинки туалета. Можно купить пластиковые полки или сделать деревянные своими руками. Там будут храниться предметы гигиены. Если ширина кабины позволяет, то можно поставить небольшой умывальник с раковиной и сделать дополнительное отверстие в полу для слива воды в яму или септик.
- Стены туалета из доски можно сделать утепленными. Для этого строят двойной каркас, обшивают с обеих сторон, а между стенами вкладывают пенопласт или специальный утеплитель. Если туалет утеплен, то необходима хорошая вытяжная система.
Замечание! При строительстве необходимо уделять особое внимание основе каркаса. Оно должно быть ровным и крепким.. Толщина доски для основы не должна быть меньше 5 см
В противном случае готовую постройку может сильно повести в сторону
Толщина доски для основы не должна быть меньше 5 см. В противном случае готовую постройку может сильно повести в сторону.
Нюансы монтажа керамического унитаза
На современном рынке сантехнического оборудования представлены в ассортименте классические фаянсовые унитазы, аналогичные моделям, которые устанавливаются в домашних санузлах квартир и домов.
Преимущества керамических изделий:
- удобство эксплуатации;
- эстетичный внешний вид;
- изделия легко моются чистящими средствами;
- керамика не впитывает неприятные запахи;
- отлично подходят для установки в неотапливаемых помещениях.
Следует учесть, что фаянсовый напольный унитаз имеет большой вес, поэтому он не подходит для установки на настил из деревянных досок. Древесина может не выдержать тяжелый фаянс, что может привести к неприятным последствиям. Этот вариант оптимально подходит для капитальных сооружений с забетонированными полами.
Эстетичным керамическим унитазам характерна довольно высокая цена, в некоторых случаях они оказываются дороже самой постройки.
Если вы остановили свой выбор на фаянсовой модели унитаза, необходимо соорудить железобетонное перекрытие. Это обеспечит надежность конструкции, но обойдется дороже
Для установки керамического унитаза на садовом участке следует укрепить пол в автономном санитарном узле. Монтаж тяжелого сиденья на настил из дерева нецелесообразен. В обслуживании фаянсовые изделия практически не отличаются от пластиковых. Керамический садовый унитаз служит дольше, смотрится дороже и эстетичней.
Установка традиционного керамического унитаза не требует особенных навыков. В полу санузла делают отверстие, размер которого должен соответствовать внутреннему диаметру выхода фаянсового унитаза. Рекомендуется укрепить его по периметру брусьями, на которые будет устанавливаться изделие.
Перед установкой тяжелого керамического садового унитаза желательно укрепить напольное покрытие брусьями. Это позволит избежать неприятных ситуаций
Фаянсовый унитаз для уличного дачного туалета ставят на предполагаемое место эксплуатации и размечают места крепления. После чего его убирают, сверлят по разметке отверстия, а на основание поверхности наносят слой герметика. На завершающем этапе устанавливают унитаз, прикручивая его болтами.
Капитальный септик с комплексом резервуаров в грунте
Для этого чаще всего делают три бетонных кольца, которые погружают в землю по очереди. Верхние становятся отстойниками, третий фильтрует нечистоты, которые уходят в землю, не причиняя вреда грунтовым водам.

Такие септики содержать анаэробные бактерии, которые перерабатывают отходы и нейтрализуют вредные бактерии.

Перед вами стоят следующие задачи:
- выбрать систему отвода, слива и утилизации нечистот;
- определить место для туалета и лучше выбрать удаленно от дома;
- решить какой вид конструкции подойдёт, разбирали выше;
- выбрать дизайн, который под силу сделать своими руками;
- подобрать подходящие материалы;
- определить размеры туалета на даче;
- рассчитать смету расходов постройки.


Определились и ответили на вопросы? Теперь можно начать строительство, давайте разберём поэтапно.

Теплый дачный туалет на зиму
Зимой бежать посреди ночи в туалет, пусть даже и построенный с любовью своими руками – удовольствие не для всех. Поэтому многие люди мечтают о теплом туалете.
Тут сразу следует оговориться – теплым он будет лишь условно. В лучшем случае, находясь в постройке, вы будете защищены от снега и ветра. Тепло здесь не будет. Если только вы не собираетесь подключить туалет к системе отопления дома, установить в нем электрический обогреватель или же поставить буржуйку, которую станете постоянно подкармливать топливом. Так что, постараемся обойтись минимумом удобств.
Главное утеплить туалет. Сделать это можно как в деревянной, так и в кирпичной постройке. Подойдут разные теплоизоляционные материалы, но проще всего использовать простой пенопласт. Он имеет множество достоинств:
- низкая стоимость,
- малый вес,
- легкость обработки и подгонки,
- высокая теплоизоляция.
Туалет обшивается пенопластом изнутри. Для этого материал нарезается на куски подходящей формы и размера – проще всего сделать это при помощи простой ножовки по дереву. При необходимости края можно обработать крупной наждачной бумагой или наждаком. Они должны быть ровными, чтобы при подгонке не оставалось щелей. К стенам пенопласт крепится при помощи саморезов с шайбами – последние снизят давление на хрупкий утеплитель. Кстати, сильно затягивать их вообще не нужно – благодаря легкости материала всего пара шурупов легко смогут удержать лист площадью в несколько квадратных метров. Утеплять нужно стены, дверь и особенно крышу – тепло поднимается вверх и на крышу приходится львиная доля теплопотерь.
Когда обшивка своими руками завершена, для большей привлекательности туалет обшивается изнутри ещё и фанерой. Она скрывает пенопласт и снижает риск его случайного повреждения. В качестве крепежа используются всё те же шурупы.
Если же вы хотите теплый туалет на дачу, то и на этот случай есть определенные идеи. Например, хорошим выбором станет установка инфракрасных ламп. Они потребляют сравнительно немного энергии и при этом способны быстро повысить температуру в небольшой постройке до более-менее комфортной.
Видео
Туалет из кирпича своими руками
Чтобы возвести кирпичный санитарный узел, необходимо заложить прочный и надежный ленточный фундамент. Для этого нужно вырыть по периметру ямы траншею глубиной в 30 см и сделать бетонную стяжку. Каркас можно будет монтировать на металлические болты, установленные до полного застывания бетона. Пол кирпичного туалета делаем бетонным, оставляя, при этом, технологические отверстия. Крышу строим, начиная с деревянной обрешетки, на которую стелим слой гидроизоляции и кровельные материалы.

Порядовка даст возможность рассчитать необходимое количество материала, правильно организовать дверной и оконный проемы. Ряды кладем один за другим, по всему периметру будущего туалета. При этом, всегда проверяем кладку строительным уровнем.
Строительство туалета для дачи: чертеж с размерами для конструкции типа «Скворечник»
Конструкция «Скворечника» состоит из древесины, которая может быть ообшита любым другим видом материала. Допускается строительство одно- или двускатной крыши. Данный вид клозета монтируется в качестве надземной постройки над выгребной ямой.
Типовый проект «Скворечника» с размерными параметрами:
| Элемент конструкции | Размер, м |
| Задняя стенка (высота) | 2 |
| Ширина | 1 |
| Передняя стенка (высота) | 2,3 |
| Площадь основания | 1х1 |
При установке конструкции деревянного туалета необходим обязательный контроль размещения поверхностей по вертикали и горизонтали. Для этих целей рекомендуется использовать строительный уровень.
Чертеж туалета «Скворечник»: 1 — обвязка, 2 — стойка, 3 — дверь, 4 — ручка, 5 — поперечина двери, 6 — передняя стенка, 7 — стропила крыши, 8 — кровля, 9 — вентиляционный стояк, 10 — дефлектор, 11 — боковая стенка, 12 — крышка выгребной ямы, 13 — кирпичные опоры, 14 — задняя стенка
Материалы для строительства «Скворечника»
Для проведения работ позаботьтесь о наличии:
- рубероида — в количестве 2 м?;
- бетонного бордюра (2 шт., длина – 2 м) или песчано-цементного блока (4 шт.);
- дверного блока (2000х900 мм);
- песка;
- вагонки (40 шт., 87х3000 мм);
- обрезной доски (4 шт., 50х100х6000 мм; 3 шт., 32х90х6000 мм);
- профильного листа из стали с оцинковкой (2000х1520х0,4 мм);
- деревянного бруса (1 шт., 50х50х600);
- комплектующих к двери (шпингалета, петель, ручки);
- крепежных элементов (саморезов, гвоздей);
- материала для финишного покрытия (лакирующего или красящего состава).
Туалет «Скворечник», фото 1: подготовка материалов и монтаж каркаса
В целях утепления конструкции следует приобрести пенопласт. После окончания строительства каркас обшивается им изнутри. Вы можете выполнить внутреннюю отделку красивыми материалами (по желанию).
Как построить туалет на даче своими руками: поэтапное строительство «Скворечника»
Инструкция к строительству «Скворечника» (пошаговое руководство):
организация выгребной ямы. Минимальный размер резервуара составляет 1х1х2 м. На дне выполняется подушка из щебня или битого кирпича;
Туалет «Скворечник», фото 2: устройство технологического отверстия в полу
- строительство фундаментной части. Для этого бордюр из бетона устанавливается так, чтобы края ямы располагались от него на расстоянии не более 0,2 м. Бордюр будет играть роль перекрытия. Процесс монтажа бордюра предполагает вкапывание таким образом, чтобы бетонное основание возвышалось над уровнем почвы не более чем на 0,1-0,15 м. Если используются песчано-цементные блоки, их следует вкопать по углам. На них в будущем будет установлен весь каркас;
- монтаж рубероида. Материал укладывается поверх основания в 3-4 слоя в качестве изолятора от влаги;
- строительство надземной части (каркаса из дерева), его отделка. В качестве обшивочного материала для каркаса может использоваться деревянная доска или вагонка. Настил для пола делается из толстых досок. Минимальная толщина для напольного покрытия составляет 4 см. Рекомендуется использовать породы дерева, обладающие повышенными прочностными характеристиками. К таким породам относится лиственница, бук, дуб и т.п.
Туалет «Скворечник», фото 3: обшивка внешних стен конструкции
Заключительные работы по созданию «Скворечника»
К заключительным работам относятся следующие этапы:
- формирование отверстия в полу. Форма прорези в этом случае может быть произвольной (круглой, ромбовидной, овальной, в виде сердечка), главное, чтобы диаметр его составлял не менее 30 см;
- монтаж дверной конструкции. Для удобства в полотне двери можно выполнить небольшую прорезь в виде окошка, чтобы солнечный свет мог проникать внутрь каркаса. Это оконце можно оставить свободным или остеклить;
- обустройство кровли. Крыша «Скворечника» может укрываться различными видами материалов. Лучше всего для этих целей подходит асбестоцементный лист, рубероид, профильный лист, изготовленный из стали;
- нанесение финишного слоя. Поверхность изделия следует обработать лакирующим составом или краской. Рекомендуется использовать масляный краситель.
Туалет «Скворечник», фото 4: монтаж вентиляционной трубы и обустройство кровли
При обустройстве туалетов не стоит забывать об организации вентиляции. Достаточно будет даже простейшего варианта. Эта система предназначена для вывода воздуха из ямы с отходами наружу. В качестве материала для изготовления вентиляции может быть использована труба. Минимальный диаметр изделия – 10 см.
Для установки трубы в подиумной части туалета, а также в его крыше выполняются прорези соответствующего диаметра. Труба должна возвышаться над крышей минимум на 0,2 м.
Туалет «Скворечник», фото 5: дачный туалет, построенный своими руками
Как сделать своими руками на даче туалет с выгребной ямой
Существует огромное разнообразие видов туалетов, которые объединены одним общим функционалом. Материал, форма, размеры и дополнительные пристройки зависят только от индивидуального предпочтения хозяев.
Фотопримеры строительства своими руками традиционных уличных туалетов
На дачном участке наиболее популярны следующие варианты туалетов.
| Иллюстрация | Название |
ФОТО: dominafiesta.com | Скворечник, крышу чаще всего делают односкатной |
ФОТО: stroyremo.ru | Избушка – один из самых сложных проектов |
ФОТО: mojdominfo.ru | Шалаш с двускатной крышей |
ФОТО: zen.yandex.ru | Домик – допускает разнообразие дизайнерских идей |
ФОТО: zen.yandex.ru | Двухместный или, как вариант, со второй стороны часто делают небольшой сарай |
ФОТО: 1000000diy.ru | Дачный туалет можно дополнительно оборудовать душем |
Можно купить готовую конструкцию, но гораздо интереснее сделать клозет на даче самостоятельно. Работа совершенно несложная и выполнить её смогут даже непрофессионалы.
Необычные фото туалетов на даче, построенных своими руками
Настоящие мастера никогда не ограничатся обыкновенной постройкой, а непременно придумают даже для обычного туалета что-то неординарное. Мы собрали в нашей фотогалерее несколько удивительных работ.
Статья по теме:
Строительство туалета для дачи: чертеж с размерами для конструкции типа «Скворечник»
Конструкция «Скворечника» состоит из древесины, которая может быть ообшита любым другим видом материала. Допускается строительство одно- или двускатной крыши. Данный вид клозета монтируется в качестве надземной постройки над выгребной ямой.
Типовый проект «Скворечника» с размерными параметрами:
| Элемент конструкции | Размер, м |
| Задняя стенка (высота) | 2 |
| Ширина | 1 |
| Передняя стенка (высота) | 2,3 |
| Площадь основания | 1х1 |
При установке конструкции деревянного туалета необходим обязательный контроль размещения поверхностей по вертикали и горизонтали. Для этих целей рекомендуется использовать строительный уровень.
Чертеж туалета «Скворечник»: 1 — обвязка, 2 — стойка, 3 — дверь, 4 — ручка, 5 — поперечина двери, 6 — передняя стенка, 7 — стропила крыши, 8 — кровля, 9 — вентиляционный стояк, 10 — дефлектор, 11 — боковая стенка, 12 — крышка выгребной ямы, 13 — кирпичные опоры, 14 — задняя стенка
Материалы для строительства «Скворечника»
Для проведения работ позаботьтесь о наличии:
- рубероида — в количестве 2 м?;
- бетонного бордюра (2 шт., длина – 2 м) или песчано-цементного блока (4 шт.);
- дверного блока (2000х900 мм);
- песка;
- вагонки (40 шт., 87х3000 мм);
- обрезной доски (4 шт., 50х100х6000 мм; 3 шт., 32х90х6000 мм);
- профильного листа из стали с оцинковкой (2000х1520х0,4 мм);
- деревянного бруса (1 шт., 50х50х600);
- комплектующих к двери (шпингалета, петель, ручки);
- крепежных элементов (саморезов, гвоздей);
- материала для финишного покрытия (лакирующего или красящего состава).
Туалет «Скворечник», фото 1: подготовка материалов и монтаж каркаса
В целях утепления конструкции следует приобрести пенопласт. После окончания строительства каркас обшивается им изнутри. Вы можете выполнить внутреннюю отделку красивыми материалами (по желанию).
Как построить туалет на даче своими руками: поэтапное строительство «Скворечника»
Инструкция к строительству «Скворечника» (пошаговое руководство):
организация выгребной ямы. Минимальный размер резервуара составляет 1х1х2 м. На дне выполняется подушка из щебня или битого кирпича;
Туалет «Скворечник», фото 2: устройство технологического отверстия в полу
- строительство фундаментной части. Для этого бордюр из бетона устанавливается так, чтобы края ямы располагались от него на расстоянии не более 0,2 м. Бордюр будет играть роль перекрытия. Процесс монтажа бордюра предполагает вкапывание таким образом, чтобы бетонное основание возвышалось над уровнем почвы не более чем на 0,1-0,15 м. Если используются песчано-цементные блоки, их следует вкопать по углам. На них в будущем будет установлен весь каркас;
- монтаж рубероида. Материал укладывается поверх основания в 3-4 слоя в качестве изолятора от влаги;
- строительство надземной части (каркаса из дерева), его отделка. В качестве обшивочного материала для каркаса может использоваться деревянная доска или вагонка. Настил для пола делается из толстых досок. Минимальная толщина для напольного покрытия составляет 4 см. Рекомендуется использовать породы дерева, обладающие повышенными прочностными характеристиками. К таким породам относится лиственница, бук, дуб и т.п.
Туалет «Скворечник», фото 3: обшивка внешних стен конструкции
Заключительные работы по созданию «Скворечника»
К заключительным работам относятся следующие этапы:
- формирование отверстия в полу. Форма прорези в этом случае может быть произвольной (круглой, ромбовидной, овальной, в виде сердечка), главное, чтобы диаметр его составлял не менее 30 см;
- монтаж дверной конструкции. Для удобства в полотне двери можно выполнить небольшую прорезь в виде окошка, чтобы солнечный свет мог проникать внутрь каркаса. Это оконце можно оставить свободным или остеклить;
- обустройство кровли. Крыша «Скворечника» может укрываться различными видами материалов. Лучше всего для этих целей подходит асбестоцементный лист, рубероид, профильный лист, изготовленный из стали;
- нанесение финишного слоя. Поверхность изделия следует обработать лакирующим составом или краской. Рекомендуется использовать масляный краситель.
Туалет «Скворечник», фото 4: монтаж вентиляционной трубы и обустройство кровли
При обустройстве туалетов не стоит забывать об организации вентиляции. Достаточно будет даже простейшего варианта. Эта система предназначена для вывода воздуха из ямы с отходами наружу. В качестве материала для изготовления вентиляции может быть использована труба. Минимальный диаметр изделия – 10 см.
Для установки трубы в подиумной части туалета, а также в его крыше выполняются прорези соответствующего диаметра. Труба должна возвышаться над крышей минимум на 0,2 м.
Туалет «Скворечник», фото 5: дачный туалет, построенный своими руками
Чертежи дачных туалетов



Скворечник
Клозеты этого типа отличаются небольшими размерами, подходят для установки на небольшом дачном участке. По сути, это прямоугольная конструкция с дверью и односкатной либо двускатной крышей.

К преимуществам причисляют следующее:
- простоту и быстроту сборки;
- экономию стройматериалов;
- компактные размеры;
- возможность строительства на ограниченной по площади территории;
- на крыше иногда устанавливают напорный бак.
Единственный недостаток в пониженной комфортности сооружения. Модели клозетов типа «скворечник» используют на даче только в теплый сезон.
Избушка

Внешне это сооружение смотрится красиво, но процесс реализации довольно трудоемкий. Поскольку все составляющие части конструкции нужно точно подгонять по размерам и подрезать, об экономии материалов не может идти речь. Зато ограждающие конструкции получаются герметичными, что позволяет пользоваться сортиром даже в холодный сезон.
Шалаш

Данную модель отличает низкая двускатная крыша, которая доходит до самой земли. Это довольно устойчивое сооружение хорошо защищено от атмосферных осадков. Дополнительным преимуществом туалета-шалаша является небольшой расход материалов. Кроме этого, клозет отличается удобством, поскольку в нижней части достаточно свободного места.
Домик

Существует множество вариантов дизайнерского оформления клозета в виде домика. Если постройку хорошо утеплить, то она будет не хуже традиционного санузла в доме, поскольку не пропускает холод и осадки. Чтобы построить туалет-домик, расход материалов и объемы работ по копанию котлована не отличаются от строительства «скворечника». Однако надежность, долговечность и устойчивость сооружения намного превосходят его аналоги.
Туалет с душем

Если размеры туалета на даче своими руками позволяют соорудить довольно просторное сооружение, то есть смысл объединить его с душем. Причем строить сдвоенную постройку намного выгоднее, чем делать отдельно клозет и душевую. Существенно сокращаются объемы и сроки проведения земляных работ, поскольку придется копать только одну выгребную яму. Ведь одна стенка будет общей, значит, сократится расход материалов. Общее покрытие может быть односкатным или двускатным.





































